0
Skip to Content
Home
Projects
Residential
Multi Residential
Commercial
Community
About
Practice
People
Contact
Open Menu
Close Menu
Home
Projects
Residential
Multi Residential
Commercial
Community
About
Practice
People
Contact
Open Menu
Close Menu
Home
Folder:
Projects
Back
Residential
Multi Residential
Commercial
Community
Folder:
About
Back
Practice
People
Contact
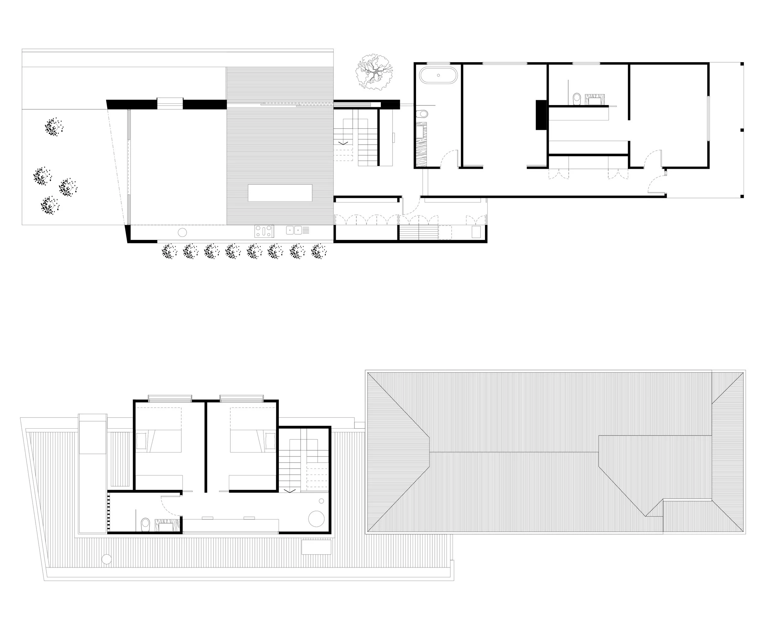
Railway
Slide 1
Slide 1 (current slide)
Slide 2
Slide 2 (current slide)
Previous
Previous
Butler
Next
Next
Orrong